Kronløbsøen, Nordhavn
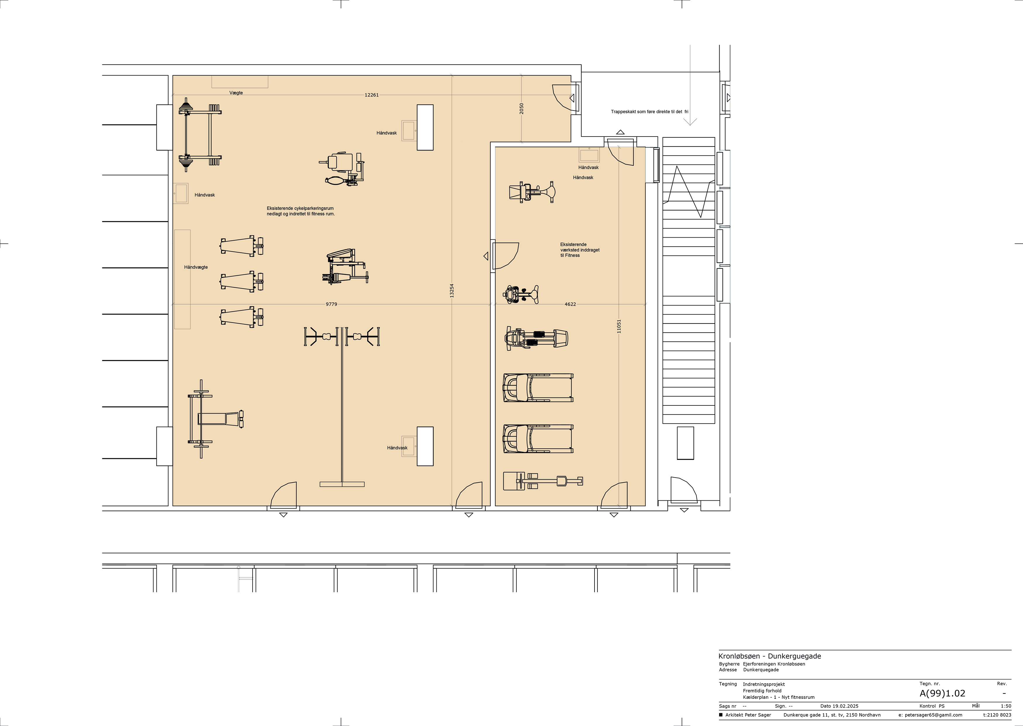
Som del af en unktionel opgradering af ejendommen er den tidligere cykelkælder transformeret til et nyt fitnessrum, der skaber merværdi og fællesskab for beboerne.
Vi har stået for brandprojektet (BK2) og varetaget hele myndighedsprocessen.
Vil du vide mere?
Send en forespørgsel, så kontakter vi dig hurtigst muligt
Tak for din interesse. Vi besvarer din henvendelse hurtigst muligt.
Der gik noget galt... Prøv igen senere.




